Developer Selected For Redevelopment Of Old Bates School, Birmingham Starts Process For Major Downtown Development

Developer Selected For Redevelopment Of Old Bates School, Arundel Community Development Services Celebrates 20th Year Capital Gazette

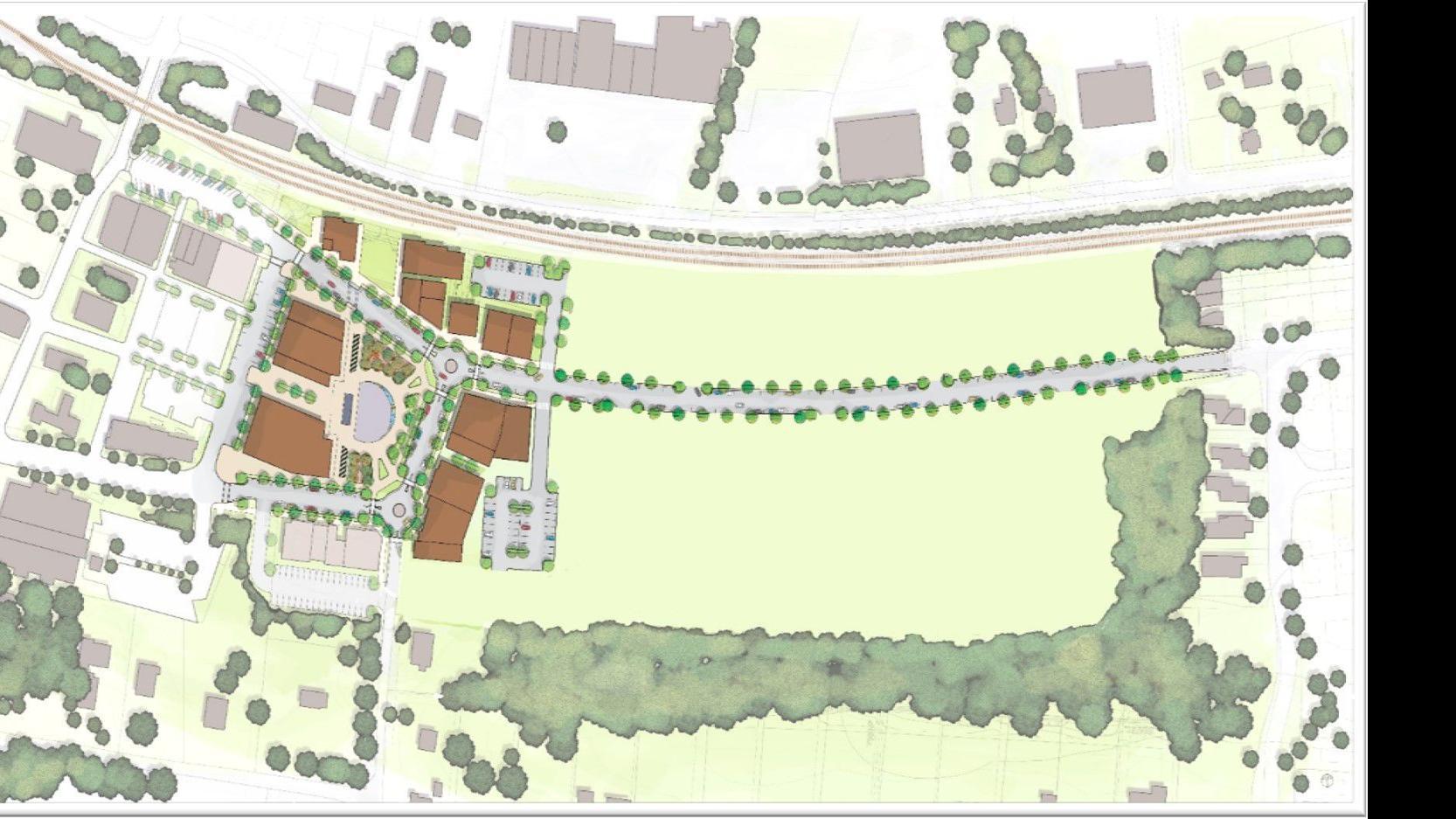
Developer selected for redevelopment of old bates school Indeed lately has been sought by consumers around us, perhaps one of you. Individuals are now accustomed to using the internet in gadgets to view video and image information for inspiration, and according to the title of this article I will talk about about Developer Selected For Redevelopment Of Old Bates School.

  • Work Begins On Munro Development At Queen Vic Market Architectureau
  • Citizens Appeal To Camden Rockport Select Boards About School Bond Process Penbay Pilot
  • 15 Million Early Childhood Center Planned For Cradle To Career Campus At Marygrove
  • Four Towers 2 360 Units Proposed For The Edge Of Downtown Jersey City Jersey Digs
  • 2
  • Mixed Use Macquarie Park Business Precinct Proposed Architectureau

Find, Read, And Discover Developer Selected For Redevelopment Of Old Bates School, Such Us:

  • Tacoma Washington Wikipedia
  • Developers At Odds Over Future Of Jersey City Neighborhood Nj Com
  • Key Bond Question For 140 Million Downtown Birmingham Development Heads To Voters
  • Points Tipping
  • Development Archives Itb Insider

If you re looking for Developer Sought For Supreme Life Rehab you've arrived at the right place. We have 100 graphics about developer sought for supreme life rehab adding pictures, pictures, photos, backgrounds, and more. In these webpage, we also have variety of images out there. Such as png, jpg, animated gifs, pic art, logo, black and white, translucent, etc.

Rezoning Approved For Barnes Lumber Site Redevelopment Local News Dailyprogress Com Developer Sought For Supreme Life Rehab

Https Www Jcchamber Org Clientuploads Economic Development 2019 Annual Report Final 05 18 20 Pdf Developer Sought For Supreme Life Rehab

Work Begins On Munro Development At Queen Vic Market Architectureau Developer Sought For Supreme Life Rehab

North Sydney S Shrunken Soul Wantonly Brutalised Developer Sought For Supreme Life Rehab

News Niall Mclaughlin Architects Developer Sought For Supreme Life Rehab

Built Developer Sought For Supreme Life Rehab

Chicago S Unfulfilled Promise To Rebuild Its Public Housing Developer Sought For Supreme Life Rehab

Greensburg Developer Incentive Programs Greensburg Community Development Corporation Developer Sought For Supreme Life Rehab

A Developer Has Big Plans For Oakland S Bates Street Corridor But Will Zoning Laws And Residents Permit It Publicsource News For A Better Pittsburgh Developer Sought For Supreme Life Rehab

Four Towers 2 360 Units Proposed For The Edge Of Downtown Jersey City Jersey Digs Developer Sought For Supreme Life Rehab

More From Developer Sought For Supreme Life Rehab


Incoming Search Terms:

  • Rh Opening Birmingham Location City Approves Bonds For Public Elements Of Woodward Bates Development Dbusiness Magazine Developer Plans For Three Condominium Buildings In Bucktown,
  • Https Www Northumberland Gov Uk Northumberlandcountycouncil Media Planning And Building Planning 20policy Consolidated 20planning 20policy 20framework Section 20b Part 201 20 20adopted 20ldds 20 Not 20statutory Blyth 20valley 20ldf Bvbc Bates Colliery Strategic Development Guide Pdf Developer Plans For Three Condominium Buildings In Bucktown,
  • Nkmtcqp H8eofm Developer Plans For Three Condominium Buildings In Bucktown,
  • Docklands Victoria Wikipedia Developer Plans For Three Condominium Buildings In Bucktown,
  • Development Archives Itb Insider Developer Plans For Three Condominium Buildings In Bucktown,
  • Mixed Use Macquarie Park Business Precinct Proposed Architectureau Developer Plans For Three Condominium Buildings In Bucktown,